
▼建築条件付き宅地
販売価格 ご成約御礼
所在地:大阪府大阪市福島区福島8丁目
面 積:土地(約47.89u)
交 通:JR環状線『福島』駅徒歩5分
JR東西線『新福島』駅徒歩7分
阪神本線『福島』駅徒歩7分
学校区:上福島小学校・下福島中学校
間取り:3LDK+屋上スカイバルコニー
構 造:木造3階建
引渡し:相談
仕 様:大阪ガスエコジョーズ・床暖房ヌック・電動シャッター・スマートキー・複合樹脂サッシ等
(売主)
▼建築条件付き宅地
販売価格 ご成約御礼
所在地:大阪府八尾市太子堂3丁目
面 積:土地(約69.83u)
交 通:JR関西本線『八尾』駅徒歩13分
JR関西本線『久宝寺』駅徒歩16分
学校区:龍華小学校・龍華中学校
間取り:4LDK
構 造:木造3階建
引渡し:相談
仕 様:スマートキー・電動シャッター・複合樹脂サッシ等
(売主)
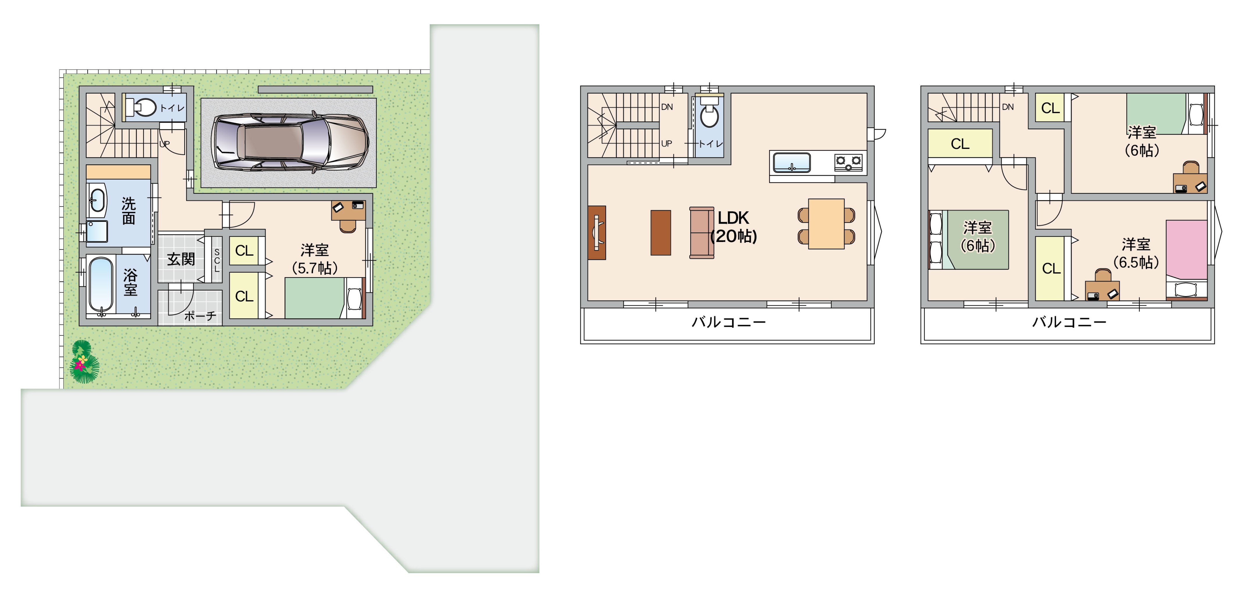
▼新築一戸建
販売価格 ご成約御礼
所在地:大阪府堺市堺区東雲西町2丁目
面 積:土地(約51.84u)建物(約95.7u)
交 通:JR阪和線『堺市』駅徒歩9分
JR阪和線『浅香』駅徒歩11分
南海高野線『堺東』駅徒歩23分
学校区:浅香山小学校・浅香山中学校
間取り:4LDK
構 造:木造3階建
引渡し:相談
仕 様:電動シャッター・スマートキー・複合樹脂サッシ等
建確番号:KKK02304232号
(売主)