
▼建築条件付き宅地
販売価格 ご成約御礼
所在地:大阪市旭区大宮3丁目
面 積:約63〜75u
交 通:大阪メトロ谷町線『千林大宮』徒歩4分
京阪本線『千林』徒歩11分
学校区:大宮小学校・旭陽中学校
間取り:4〜5LDK+車庫2台
構 造:木造3階建
引渡し:相談
仕 様:大阪ガス床暖房・スマートキー・複合樹脂サッシ・電動シャッター等
(売主)
▼建築条件付き宅地
販売価格 ご成約御礼
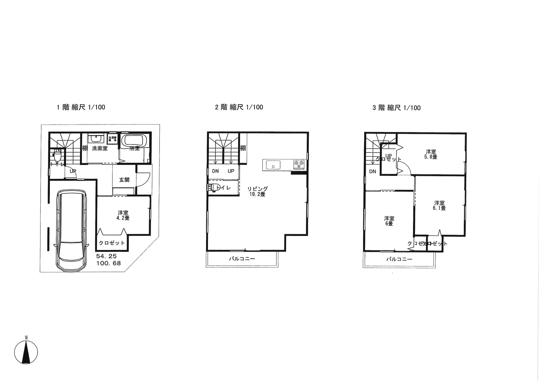
所在地:大阪市西淀川区大和田1丁目
面 積:土地(約54u)
交 通:阪神本線『千船』徒歩 10分
『姫島』徒歩 13分
学校区:大和田小学校・淀中学校
間取り:4LDK
構 造:木造3階建
引渡し:相談
仕 様:スマートキー・複合樹脂サッシ等
(売主)
▼建築条件付き宅地
販売価格 ご成約御礼
所在地:兵庫県伊丹市車塚2丁目
面 積:土地(約86u)
交 通:阪急神戸線『武庫之荘』徒歩 19分
学校区:笹原小学校・笹原中学校
間取り:4LDK
構 造:木造2階建
引渡し:相談
仕 様:大阪ガス床暖房・吹付断熱材・スマートキー・複合樹脂サッシ等
(売主)